Skip to main content
mouse

Villa Heerenveen

Heerenveen

Immens grote ramen, een paar luifels, een overstek en een donker zigzaggend scherm met perforaties. Meer bijzonderheden laat deze woning in Heerenveen eigenlijk weinig zien. Architect Diana Lautenbag geeft de bewoners met hun wensen graag alle ruimte. Daglicht en schaduwwerking doen de rest. Net zo pragmatisch als het er uit ziet, is het ook constructief opgelost.

Projectgegevens

Locatie Nienke van Hichtumwei 11, Heerenveen
Opdracht familie Schulp - De Vries
Architectuur Lautenbag Architectuur HIndeloopen
Constructief Ontwerp constructieadviesbureau De Maren
Uitvoering De Bouwhorst Heerenveen

Hij staat er een beetje ongemakkelijk bij, deze strakke, witte woning. Oorspronkelijk was de bedoeling dat hier een 'freestyle' wijk zou ontstaan. Maar toen de kavels in de crisisjaren geen aftrek vonden, liet de gemeente Heerenveen die eisen los. Zo staan er nu maar een paar van die moderne woningen. Verder vooral de bakstenen notariswoningen die je in elke nieuwbouwwijk wel ziet. 'Dat vind ik wel heel jammer', zegt architect Diana Lautenbag.

Het gesprek met de architect verloopt zoals de woning eruit ziet: het een volgt  altijd logisch uit het ander, vanzelfsprekend bijna, en wat er niet echt toe doet, ontbreekt gewoon. Ze deed ervaring op bij een groter bureau dat oorspronkelijk was geïnspireerd door Benthem Crouwel - diezelfde inspiratie zie je nu terug in dit ontwerp.

Een paar ogenschijnlijk simpele en beeldbepalende ontwerpbeslissingen die een-op-een volgen uit de locatie en het programma van eisen. Dat is het. Verder alleen lichte, neutrale vlakken die niet om aandacht vragen. Het contrast met de bakstenen retro-woningen eromheen maakt die benadering onbedoeld nog duidelijker zichtbaar.

Krachtig statement

De opdrachtgevers, een gezin met twee jonge kinderen, hebben een kavel op een hoek, met aan twee kanten vrij uitzicht over water en groen. Privacy en uitzicht zijn hun twee belangrijkste eisen. Verder willen ze een ruimtelijke woning met plek om aan de auto te sleutelen.

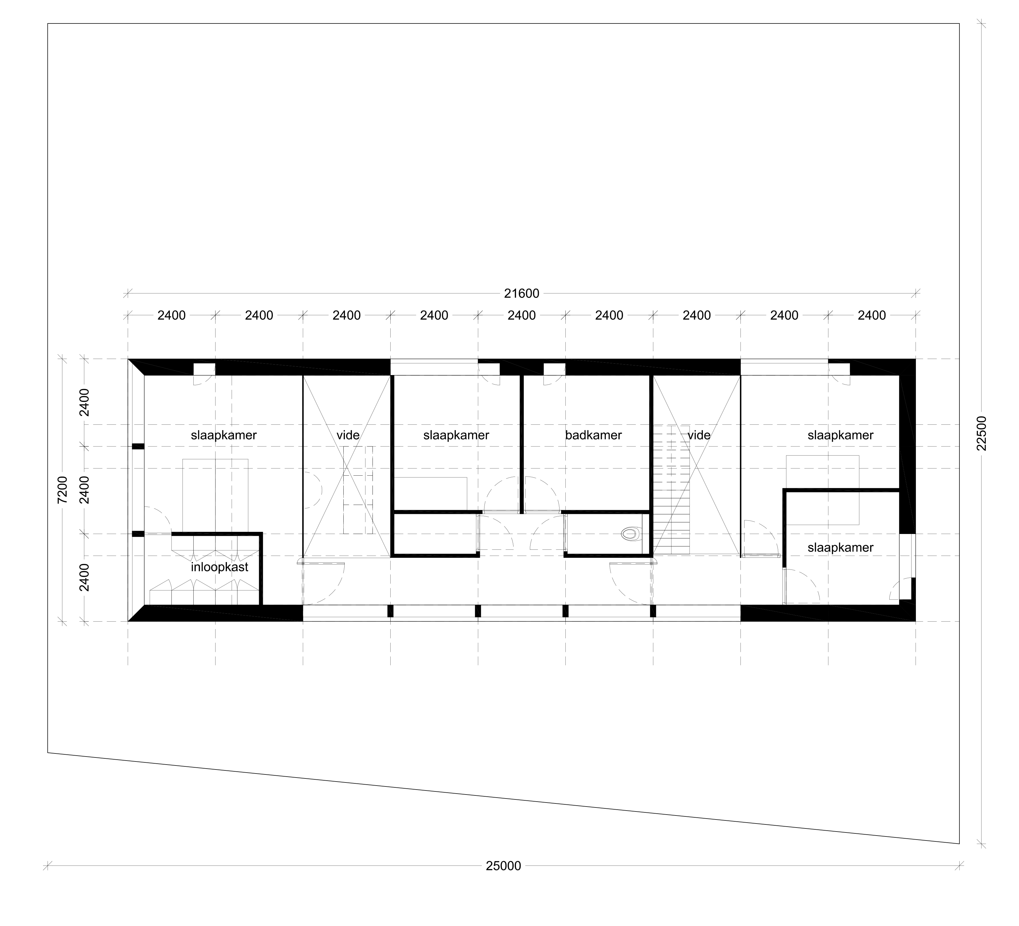
Omdat het met 600 m2 niet al te groot is, benut Lautenbag het toegestane bouwoppervlak niet helemaal, zodat er zo veel mogelijk tuin overblijft. Om diezelfde reden komt de garage met dienstruimten in een souterrain. Dat tilt de begane grondvloer tegelijk een stukje boven maaiveld uit, wat het uitzicht verbetert en de inkijk vermindert. Deze ingreep laat de architect duidelijk zien als een donkere plint waar het lichte bouwvolume op rust. 'Dat maakt de binnenkomst, langs een trap en bordes, bewuster en wat chiquer', licht ze toe. 

De volgende ingreep is alle verblijfsruimten, zowel beneden als boven, aan de achterkant en kopse kant te leggen, de kanten waar het uitzicht is. De immense raamopeningen daar zijn van binnen gezien vormgegeven als stukken ontbrekende gevel - vloer en plafond stoppen gewoon, zonder zichtbaar kozijn. 'Zo lijkt het bijna alsof je buiten woont', licht ze die keuze toe.

Om de oriëntatie op de uitzichtkant van buitenaf gezien meer te benadrukken, is er het overstek van de verdieping over de woonkamer beneden. 'Dat geeft de kijkrichting duidelijk aan en het maakt het volume enorm veel spannender', licht ze toe. Hetzelfde geldt voor de grote luifel, die natuurlijk ook een zonwerende functie heeft.

Aan de lange gevel langs de straatkant is uitzicht niet nodig en inkijk niet gewenst, maar lichttoetreding juist wel. Die combinatie van eisen vertaalt Lautenbag in een krachtig statement: behalve de voordeur bevat die gevel alleen een groot, gevouwen scherm met perforaties. 

Binnen is dit scherm, met het lichtpatroon zoals het door de perforaties binnenvalt, het element dat alle ruimten visueel met elkaar verbindt. Daglicht en schaduw hebben vrij spel in twee vides, waarop ook de slaapkamers uitkijken. Op de begane grond lijkt de leefruimte een geheel, door de vrije strook langs de gevel met alleen een paar glazen deuren. 'Om het daglicht en uitzicht alle aandacht te geven, is het interieur heel terughoudend vormgegeven, zowel van kleur als detaillering', zegt Lautenbag. 'Anders zou dat alleen maar afleiden.'

Strak stramien

De voorgevel is abstract wit gestuukt. 'Daarmee komen bijzondere onderdelen het beste tot hun recht', zegt Lautenbag. 'En je hebt geen hoekoplossingen nodig.'  Wat haar betreft worden alle gevels zo, maar de opdrachtgever ziet op de  zij- en achtergevels graag gevelplaten.

'Het leuke daarvan is wel dat het stramien zo direct afleesbaar is, het staat als het ware op de gevel uitgetekend.' Wanden, raamindeling, alles aan de woning staat strak in dat stramien. Niet alleen handig in de uitvoering, werken met standaard maten , 'maar het gaat ons ook om het ritme. Dat geeft geeft visueel rust en vestigt de aandacht op de afwijkende elementen', verklaart Lautenbag. 'Dat doen we in al onze ontwerpen. Het is tegelijk ook een spel met symmetrie; afwijkingen moeten visueel spannend en in balans zijn.'

Pragmatisch

Veel van die bijzondere onderdelen aan de woning zijn van staal, in vorm, kleur en 'gevoel' maximaal contrasterend met de abstracte vlakken van gevels en vloeren. Vooral het gevouwen stalen scherm springt eruit. Stalen kolommen achter de puien verraden de portalen die daar staan om de vloeren erboven op te vangen. Ook die kolommen staan strak in het gelid, direct achter de raamstijlen, in dezelfde kleur. En het zijn kokers, want 'open walsprofielen zouden te veel aandacht trekken', zegt de architect.

Overigens bestaat de hoofddraagconstructie in hoofdzaak uit kalkzandsteen wanden en betonnen vloeren; van staal zijn dus alleen een paar afzonderlijke hulpconstructies. Speciaal om naden in het plafond eronder te voorkomen, wordt de verdiepingsvloer een breedplaatvloer, de andere zijn kanaalplaten.

Voor de overstekende verdieping betekent 'visueel spannend' tegelijk ook 'constructief spannend', wat de architect met een stalen hulpconstructie oplost. Verborgen in de wanden staat in de kopgevel op de begane grond een portaal dat tot boven doorloopt. Tuien aan weerszijden ondersteunen de overstekende vloer; de achtertuien zijn verankerd in de vloer.

Zo is de constructie volkomen pragmatisch opgelost, zoals eigenlijk de hele opgave is aangepakt. 'Je moet je geld uitgeven aan wat belangrijk is', besluit de architect. 



Tekst: BOUWEN MET STAAL | augustus 2019

ir. P.F. van Deelen