Skip to main content
Fernando Guerra FG+SG mouse

Rechtbank Amsterdam

Amsterdam

De Rechtbank Amsterdam is een gebouw van optimale functionaliteit met een verassende ruimtelijkheid. Een gebouw dat naadloos aansluit op de vraag van onze klant: een transparant gebouw, zonder in te boeten op de veiligheid van medewerkers en bezoekers. Staal speelt een belangrijke rol in het waarmaken van deze ambitie. Om dit te realiseren is al in de tenderfase intensief samengewerkt tussen de architect, de constructeur en de staalbouwer.

Projectgegevens

Locatie Parnassusweg 280, Amsterdam, Nederland, Amsterdam
Opdracht Rijksvastgoedbedrijf, Den Haag
Architectuur KAAN Architecten, Rotterdam
Constructief Ontwerp ABT, Velp
Uitvoering Heijmans, Rosmalen
Staalconstructie CSM steelstructures, Hamont-Achel (B)

Algemene projectomschrijving

In mei 2021 is de nieuwe Rechtbank Amsterdam geopend. Rechtbank Amsterdam is ontworpen en uitgevoerd door het consortium NACH (New Amsterdam Court House), een samenwerking tussen Macquarie Capital, ABT, DVP, KAAN Architecten, Heijmans en Facilicom, in opdracht van het Rijksvastgoedbedrijf. Bijzonder aan de samenwerking in het consortium is dat álle partijen risicodragend meededen. Het zorgde voor een gelijkwaardige samenwerking, een hecht team en een perfect passend ontwerp binnen de door de opdrachtgever geraamde kosten.

In de rechtbank komen drie werelden samen, die tegelijkertijd strikt gescheiden moeten blijven: de rechterlijke macht, de gehechten en de bezoekers. Het Rijksvastgoedbedrijf wilde desondanks een transparant gebouw, zonder in te boeten op de veiligheid van medewerkers en bezoekers. Dat waren de ontwerpuitgangspunten waar het team zich vanaf dag één op heeft gericht.

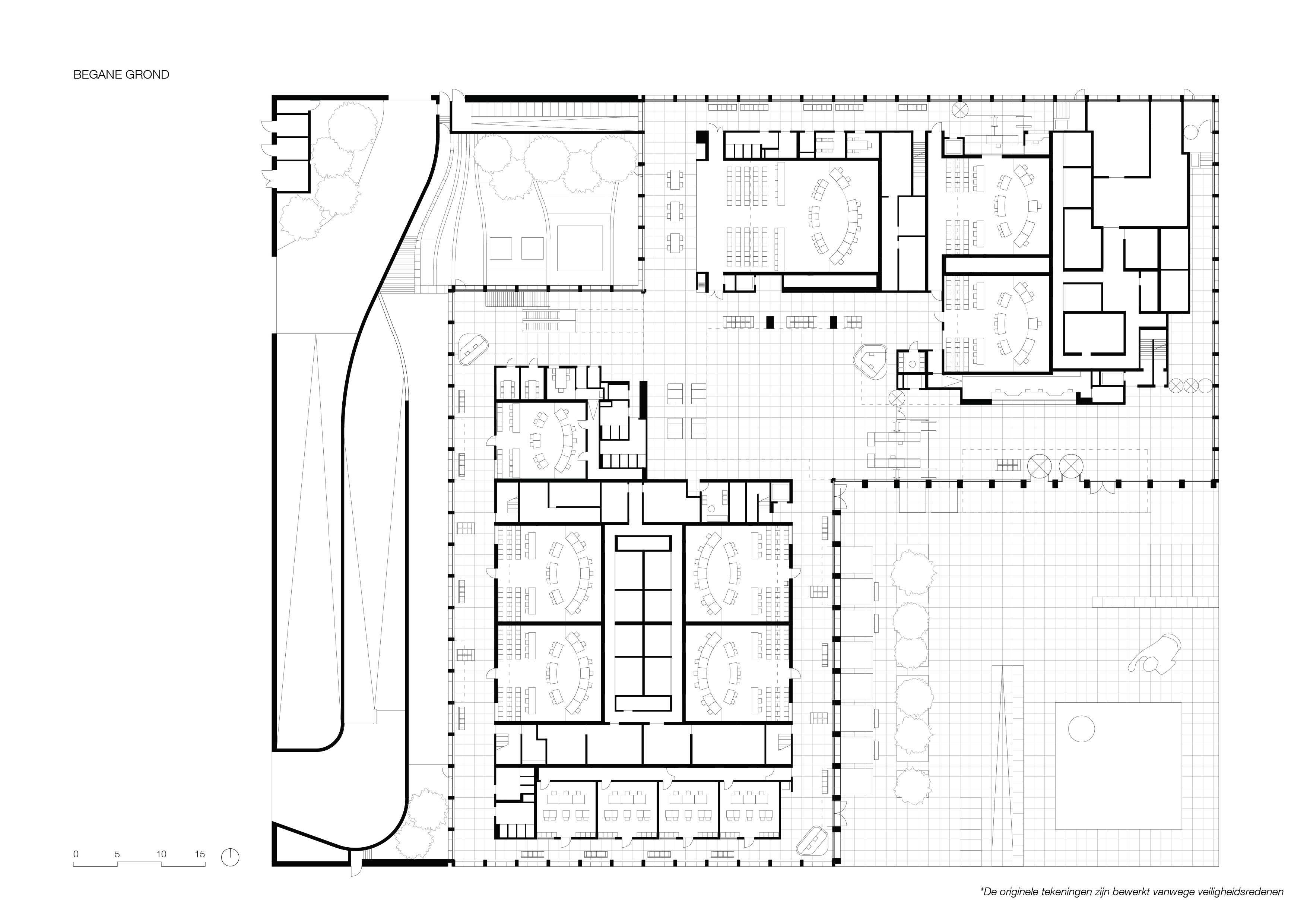
Het architectonisch ontwerp heeft als uitgangspunt dat in een rechtsstaat de rechtspraak een publieke zaak is verweven met het leven van alledag. Het vijftig meter hoge gebouw heeft een onversneden open karakter. Grote ramen in de onderste helft van het gebouw bieden vanaf de straat zicht op de drukte binnen. In de ruim opgezette foyers die om de zittingszalen heen lopen verblijven bezoekers, 800 tot 1000 per dag, advocaten met hun cliënten, verslaggevers, gedaagden en belangstellenden. Vanuit het gebouw is steeds zicht op de stad. De centrale hal met roltrappen vouwt zich open langs een binnentuin en stapelingen van zittingszalen tot een zee van ruimte en licht.

De nauwe samenwerking tussen alle partijen heeft een praktisch en duurzaam gebouw voortgebracht, vrijwel energieneutraal en toekomstbestendig door een grote mate van flexibiliteit. Personeel en bezoekers hebben een inspirerende, aangename en veilige omgeving gekregen met degelijke materialen die mooi verouderen.

Beschrijving staalconstructie en/of gebruik van staal

Staal speelt een belangrijke rol bij het waarmaken van de architectonische opzet van het gebouw. De staalconstructie maakt het mogelijk om de centrale hal kolomloos te houden en alle publieke verdiepingen van het gebouw met elkaar te verbinden door middel van een groot aantal verspringende vides. Om deze functionaliteit en ruimtelijkheid te bereiken moesten de zittingszalen op een complexe wijze in de kern van het gebouw worden gestapeld. Dat leidde in de constructie tot zwaar belaste knooppunten, waar op inventieve wijze ingestorte, massieve stalen verstevigingen zijn aangebracht.

De meest prominent zichtbare staalconstructie is de stalen gevelconstructie in combinatie met de stalen gevelbekleding. Dit speelt een belangrijke rol in het architectonisch beeld en in het veiligheidsconcept van het gebouw.

De staalconstructie van de bovenste kantoorlagen maakt kolomvrije kantoorverdiepingen mogelijk die vrij in te delen zijn. De kantoorverdiepingen worden verbonden door ronde vides met prachtig vormgegeven trappen, volledig van staal. Deze trappen nodigen de gebruiker uit de trap te gebruiken in plaats van de lift.

In het gebouw is in het totaal 6000 ton staal geïntegreerd waarvan ca. 700 ton in de gevel. De bovenste zes verdiepingen van de rechtbank zijn volledig uitgevoerd in staal en bevatten 22.500m² aan staalplaatbetonvloeren. De hoogste stalen kolom uit één stuk is 23 meter hoog en de grootste overspanning in staal is 23 meter lang.

Bijzondere aspecten bouwkundig concept / ontwerp

De opzet van de centrale hal is ruimtelijk, overgoten met daglicht, open, overzichtelijk en doorzichtig. Om die opzet te realiseren is de centrale hal kolomloos ontworpen en zijn de gevelkolommen ‘buiten’ het gebouw geplaatst. De kolomloze ruimte met vides en vrije zichtlijnen creëert niet alleen ruimtelijkheid, maar vergroot ook de veiligheid van de rechtbank. Je kunt je namelijk niet achter een kolom verschuilen.

De stalen trappen in de centrale ronde vide is een van de eyecatchers van het gebouw. Deze trappen zijn opgebouwd uit 25mm dikke stalen platen. De leuningen en treden zijn aan elkaar gelast en vormen op deze manier een sterke en stabiele U-vormige doorsnede van staal. Er zijn geen stootborden toegepast. De trappen hebben een lengte van 12 tot 14 meter. De opleggingen zijn in de staalconstructie van de omliggende vloeren geïntegreerd. Bepalend voor het ontwerp is de eigenfrequentie in zijdelingse richting, de trappen zijn ontworpen op een frequentie die past bij een comfortabele trap. In een 3D-rekenmodel zijn voor verschillende belastingsituaties en oplegcondities de maatgevende frequenties berekend. Met dit model zijn ook de stabiliteit van de trap, voornamelijk de knikstabiliteit van de leuningen, spanningen en vervormingen berekend.

Bijzondere constructieve slimmigheden / detailleringen

Hoogwaardige engineering in combinatie met vernuftige detailleringen maken de ogenschijnlijk eenvoudige gevel mogelijk. Om de publieke ruimten kolomvrij te houden, zijn de kolommen die het vijftig meter hoge gebouw dragen ‘buiten’ het gebouw geplaatst. Door een uitgekiende positionering en detaillering worden de stalen kolommen voldoende opgewarmd zodat de thermische vervorming door middel van de schommeling van de buitentemperatuur beperkt blijft.

Voor optimale ruimtelijkheid en overzichtelijkheid van de publieke ruimten zijn een groot aantal grote en kleine vides in het ontwerp geïntegreerd grenzend aan de gevel. Voor de gevelkolommen betekent dit dat de kolommen niet op elke verdieping worden gesteund, een rekenkundig aspect waaraan in de engineeringsfase bijzondere aandacht is besteed. Ook het knikgedrag is van nagenoeg alle kolommen verschillend. Hierdoor zijn nagenoeg alle kolommen uniek, maar is de principe detaillering overal gelijk.

De kolommen zijn zo slank mogelijk ontworpen om daglicht in het gebouw te maximaliseren. Om dit te bereiken zijn de kolomflenzen aan de buitenzijde gezaagd tot een breedte van 240 en 220mm.

De buitenhoekkolommen van de gevel zijn samengestelde T-kolommen (in basis een HEM500-S355). De twee binnenhoekkolommen in het ‘centrale scharnier’ van het gebouw (aan de entree- en aan de tuinzijde) zijn opgebouwd uit 40mm dikke platen van S460M. Markant detail: de hoekkolommen hebben in doorsnede de plattegrond van het gebouw meegekregen.

Om strak afgelijnde verticale gevelkappen om de stalen kolommen te krijgen, is er gebruik gemaakt van een stalen beugel die is bevestigd op de gevelkolom en die bovendien in 3 richtingen gericht kon worden. Alle overige elementen zijn bevestigd tegen deze verticale gevelkap. Een extra uitdaging bij de engineering was dat een verticale gevelkap gedemonteerd moest kunnen worden zonder de gehele gevel af te hoeven breken. Dit was noodzakelijk omdat indien er glasbreuk zou ontstaan, deze langs buiten vervangen moest worden.

Bijzondere aspecten uitvoering

Omwille van de maakbaarheid en de minimale bouwtoleranties is ervoor gekozen om de gevelkolommen van de begane grond tot de vijfde verdieping in één keer te plaatsen. De kolommen krijgen hiermee een lengte van ongeveer 23 meter. Om ervoor te zorgen dat de kolommen niet getordeerd staan, werden er horizontale afstandshouders toegevoegd aan beide zijdes van de kolomflenzen. De stabiliteit werd gegarandeerd door gebruik te maken van tijdelijke windverbanden die hergebruikt werden tussen verschillende gevelvlakken.

De aansluiting tussen de ligger vanuit de betonstructuur en de gevelkolom werd uitgevoerd met een kluft verbinding. Dit had bij de stort van de vloer als voordeel dat de ligger tijdelijk scharnierend verbonden kon worden waardoor de momenten en de doorbuigingen geminimaliseerd werden. Nadat de vloer uitgehard was, was het mogelijk om nog kleine correcties loodrecht op de gevel uit te voeren. Tot slot werden de verbindingen verder afgewerkt door deze op te vullen en volledig aan te draaien.

Bijzondere functionele aspecten van het bouwwerk

De nieuwe rechtbank is een goed voorbeeld waar architectuur en functionaliteit bij elkaar komen. Zo is alles binnen het gebouw bedoeld om het functioneren te ondersteunen: logische en korte looproutes voor de rechters, materialisering in de foyer die stressreducerend werkt voor de bezoekers, klimaatbubbels en goede zichtlijnen voor de bodes, maatregelen voor de akoestiek, de beveiliging en veiligheid.

De rechtbank is zo ontworpen dat het gebouw makkelijk is aan te passen aan toekomstige ontwikkelingen en lang mee kan gaan. De indeling van zittingszalen is bijvoorbeeld eenvoudig te veranderen, zodat alle procespartijen in de zaal hun werk zorgvuldig kunnen doen. In het ontwerp is bewust gekozen voor natuursteen. Dat gaat lang mee, behoeft vrijwel geen onderhoud en is daardoor weinig milieubelastend over zijn levensduur. In de gebieden waar veel mensen lopen, zoals de publieke ruimte, is bovendien extra aandacht besteed aan de slijtvastheid van materialen.

Veiligheid en beveiliging spelen een grote rol binnen de rechtbank. Mensen moeten snel naar buiten kunnen, maar ook beschermd worden voor inbreuk van buitenaf. Het atrium is vanuit beveiligingsoogpunt daarom heel overzichtelijk ontworpen, zonder dode hoeken. De kolommen zijn allemaal naar buiten geplaatst waardoor het uitsteeksels zijn aan de buitenkant en niet aan de binnenkant. Voor de brandveiligheid worden trappen normaal direct aan de gevel geplaatst, maar dan zou hier meteen de openheid weg zijn. Daarom zijn de vluchtwegen in de kern van het gebouw geplaatst. In combinatie met de verschillende gebruikersgroepen die gescheiden van elkaar moeten blijven, leverde dit een heel complexe 3d-puzzel op. De vluchtroutes blijven altijd binnen ruimtes met eenzelfde beveiligingsniveau, of komen uit op routes met een lager beveiligingsniveau.